Lindwedel weiter auf Wachstumskurs
Gemeinde investiert 640.000 Euro in die Kindergartenerweiterung
Lindwedel investiert weiter in Zukunft und Infrastruktur. Die südlichste Gemeinde im Heidekreis ist bei Neubürgern sehr beliebt und der Zuzug ist ungebrochen. Dazu beigetragen hat neben der guten Lage nahe der Landeshauptstadt vorallem günstiges kommunales Bauland, eine gute Infrastruktur mit Bahn und Einkaufsmöglichkeiten und nicht zuletzt auch ein wachsendes Angebot für die Jüngsten in der Gemeinde. Mit der kürzlich vom Rat beschlossenen Erweiterung der Kindertagesstätte Eulennest geht die Gemeinde nun noch einen Schritt weiter: Mit einem Neubau soll die Platznot im Kindergarten beseitigt und die bislang getrennten Gebäude Kindergarten und „Alte Schule“ auf dem Grundstück verbunden werden. Es entsteht damit ein bedarfsgerechter und moderner Kindergarten unter einem Dach, freuen sich Bürgermeister Artur Minke und Gemeindedirektor Björn Gehrs.
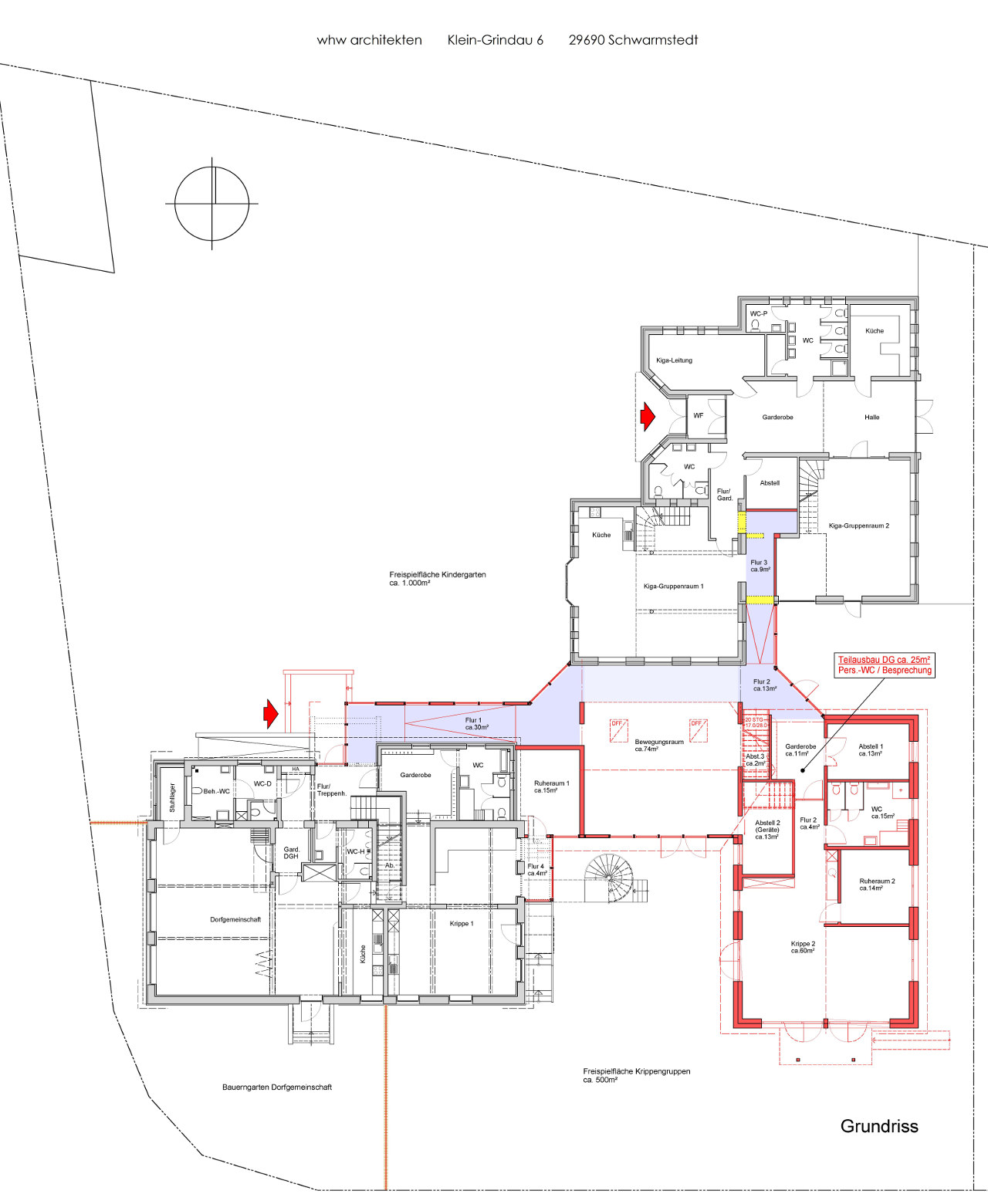
Nötig wurde der Bau, weil durch wachsende Kinder und Gruppenzahlen das bisherige Raumangebot nicht mehr ausreichte, wie auch eine Begehung im letzten Herbst ergab. Mit dem Neubau wird Platz für eine weitere Krippengruppe mit ca. 105 qm sowie eines zentralen Bewegungsraumes mit ca. 75 qm im Erdgeschoss geschaffen. Dieser fungiert als „bauliche Klammer“ zwischen den beiden vorhanden Gebäuden auf dem Grundstück. Der Vorteil: Alle Kinder können dann in einem zusammenhängenden Gebäude untergebracht werden. Zusätzlich entstehen in dem Erweiterungsneubau dringend benötigte zentrale Abstellräume mit ca. 30 qm, zusätzliche Personal-WCs und ein Besprechungsraum mit ca. 25 qm sowie ein ausbaufähiges Dachgeschoss für eine weitere Kindergartengruppe mit ca. 75 qm, erläutert Architekt Wolfgang Heuer-Wischhoff. Insgesamt erweitert die Gemeinde Lindwedel mit dieser Baumaßnahme den Kindergarten um eine Nutzfläche von ca. 365 qm im Erdgeschoss und Dachgeschoss und mit einem veranschlagten Gesamtinvestitionsvolumen von 640.000,00 €. Das Vorhaben soll in diesem Frühjahr begonnen und bis zum Ende 2015 in Betrieb genommen werden. 
Ebenfalls auf Hochtouren laufen die Planungen für die Erweiterung der Grundschule und der Bau einer Mensa in Lindwedel. Dort besteht ebenfalls Raumbedarf. Hier sollen im Frühjahr die erforderlichen Ratsbeschlüsse und Kostenvereinbarungen zwischen Gemeinde und Samtgemeinde getroffen werden. 
Zum Foto: Auf Zukunft ausgerichtet - Vorstellung der neuen Pläne für die Kindergartenerweiterung in Lindwedel (v.l. Gemeindedirektor Björn Gehrs und sein Stellvertreter Martin Geisel, Architekt Wolfgang Heuer-Wischhoff und Bürgermeister Artur Minke).


Aktuelles
Ältere amtliche Bekanntmachungen















Veranstaltungen in der Samtgemeine Schwarmstedt