1. Änderung des Bebauungsplans Nr. 20 „Berkhofer Weg II“; öffentliche Auslegung gem. § 3 Abs. 2 Baugesetzbuch (BauGB)

Der Rat der Gemeinde Buchholz (Aller) hat in seiner Sitzung am 29.03.2017 dem Entwurf der 1. Änderung des Bebauungsplans Nr. 20 „Berkhofer Weg II“ mit örtlicher Bauvorschrift und der Begründung zugestimmt und die öffentliche Auslegung gem. § 3 Abs. 2 BauGB beschlossen.

Die 1. Änderung des Bebauungsplans Nr. 20 „Berkhofer Weg II“ wird im vereinfachten Verfahren nach § 13 BauGB aufgestellt. Von einer Umweltprüfung nach § 2 Abs. 4 BauGB wird abgesehen.

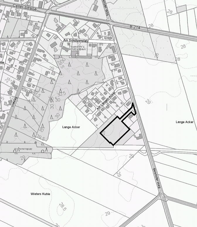
Der räumliche Geltungsbereich der 1. Änderung des Bebauungsplans Nr. 20 „Berkhofer Weg II“ liegt im Ortsteil Marklendorf südlich der B 214 und östlich der Straße Berkhofer Weg im Anschluss an das Baugebiet „Am Langen Acker“. Die Grenze des räumlichen Geltungsbereichs ist im folgenden Kartenausschnitt verdeutlicht:

Die öffentliche Auslegung des Entwurfs der 1. Änderung des Bebauungsplans Nr. 20 „Berkhofer Weg II“ mit örtlicher Bauvorschrift und der Begründung gem. § 3 Abs. 2 BauGB erfolgt von Dienstag, den 18. April 2017, bis einschließlich Donnerstag, den 18.  Mai 2017, in der Gemeindeverwaltung im Rathaus (Zimmer 36) in Schwarmstedt, Am Markt 1, während folgender Zeiten:

Montag bis Freitag: 8.30 bis 12.00 Uhr

Donnerstag: außerdem 14.00 bis 18.00 Uhr

und nach telefonischer Vereinbarung (Tel.: 0 50 71 / 8 09 - 36) auch zu anderen Zeiten.

Während der öffentlichen Auslegung können Stellungnahmen zum Entwurf der 1. Änderung Bebauungsplans Nr. 20 „Berkhofer Weg II“ mit örtlicher Bauvorschrift  und der Begründung schriftlich oder mündlich zur Niederschrift bei der Gemeinde Buchholz (Aller) abgeben.

Hinweise:

Nicht fristgerecht abgegebene Stellungnahmen können bei der Beschlussfassung über die 1. Änderung und Ergänzung des Bebau­ungsplans Nr. 21 „Schwarzer Berg“ unberücksichtigt bleiben.

Ein Antrag nach § 47 der Verwaltungsgerichtsordnung (Normen­kontrolle) ist unzulässig, soweit mit ihm Einwendungen geltend gemacht werden, die vom Antragsteller im Rahmen der Auslegung nicht oder verspätet geltend gemacht wurden, aber hätten geltend gemacht werden können.

Schwarmstedt,  den  04.04.2017                                                                       

GEMEINDE BUCHHOLZ (ALLER)
Der Gemeindedirektor
gez. Gehrs

   
buchtipp-2026-01-17Die Samtgemeindebücherei im Uhle-Hof empfiehlt in dieser Woche folgende neue Bilderbücher für Kinder ab 3 Jahren:

mehr...
buchtipp-2025-12-13Die Samtgemeindebücherei im Uhle-Hof empfiehlt in dieser Woche folgende neue Weihnachtsbilderbücher für Kinder ab 4 Jahren:

mehr...
buchtipp-2025-11-29Die Samtgemeindebücherei im Uhle-Hof empfiehlt in dieser Woche folgende neue Bilderbücher für Kinder ab 18 Monaten:

mehr...
buchtipp-2025-11-01Die Samtgemeindebücherei im Uhle-Hof empfiehlt in dieser Woche folgende neue Bilderbücher für Kinder ab 3 Jahren:

mehr...
buchtipp-2025-08-15Die Samtgemeindebücherei im Uhle-Hof empfiehlt in dieser Woche folgende neue Bilderbücher für Kinder ab 4 Jahren:

mehr...
buchtipp-2023-08-05Die Samtgemeindebücherei im Uhle-Hof empfiehlt in dieser Woche folgende neue Bilderbücher für Kinder ab 4 Jahren:

mehr...
buchtipp-2023-05-20Die Samtgemeindebücherei im Uhle-Hof empfiehlt in dieser Woche folgende neue Pappbilderbücher für Kleinkinder ab 2 Jahren:

mehr...
buchtipp-2023-04-15Die Samtgemeindebücherei im Uhle-Hof empfiehlt in dieser Woche folgende neue Bilderbücher für Kinder ab 4 Jahren:

mehr...
buchtipp-2023-02-18Die Samtgemeindebücherei im Uhle-Hof empfiehlt in dieser Woche folgende neue Wimmelbilderbücher für Kinder ab 2 Jahren:

mehr...
buchtipp-2022-11-26Die Samtgemeindebücherei im Uhle-Hof empfiehlt in dieser Woche folgende neue Weihnachtsbilderbücher für Kinder ab 4 Jahren:

mehr...
buchtipp-2022-09-10Die Samtgemeindebücherei im Uhle-Hof empfiehlt in dieser Woche folgende Sachbücher der Reihe "Wieso?Weshalb?Warum?" für Kinder ab 4 Jahre:

mehr...
buchtipp-2022-08-13Die Samtgemeindebücherei im Uhle-Hof empfiehlt in dieser Woche folgende neue Bilderbücher für Kleinkinder ab 4 Jahren:

mehr...
buchtipp-2022-05-14Die Samtgemeindebücherei im Uhle-Hof empfiehlt in dieser Woche folgende neue Bilderbücher für Kinder ab 4 Jahren:

mehr...
buchtipp-2022-03-05Die Samtgemeindebücherei im Uhle-Hof empfiehlt in dieser Woche folgende neue Pappbilderbücher für Kleinkinder ab 2 Jahren:

mehr...
buchtipp-2021-12-18Die Samtgemeindebücherei im Uhle-Hof empfiehlt in dieser Woche folgende neue Weihnachtsbilderbücher für Kinder ab 4 Jahren:

mehr...
buchtipp-2021-12-11Die Samtgemeindebücherei im Uhle-Hof empfiehlt in dieser Woche folgende neue Weihnachtsbilderbücher für Kinder ab 4 Jahren:

mehr...
buchtipp-2021-11-27Die Samtgemeindebücherei im Uhle-Hof empfiehlt in dieser Woche folgende neue Weihnachtsbilderbücher für Kinder ab 4 Jahren:

mehr...
buchtipp-2021-11-13Die Samtgemeindebücherei im Uhle-Hof empfiehlt in dieser Woche folgende neue Bilderbücher für Kinder ab 4 Jahren:

mehr...
buchtipp-2021-08-14Die Samtgemeindebücherei im Uhle-Hof empfiehlt in dieser Woche folgende neue Sachbücher für Kinder ab 4 Jahren:

mehr...
buchtipp-2021-06-26Die Samtgemeindebücherei im Uhle-Hof empfiehlt in dieser Woche folgende neue Bilderbücher für Kinder ab 4 Jahren:

mehr...
buchtipp-2020-11-05Die Samtgemeindebücherei im Uhle-Hof empfiehlt in dieser Woche folgende neue Bilderbücher für Kinder ab 4 Jahren:

mehr...
buchtipp-2020-07-23Die Samtgemeindebücherei im Uhle-Hof empfiehlt in dieser Woche folgende neue Bilderbücher für Kinder ab 3 Jahre:

mehr...
buchtipp-2020-05-21Die Samtgemeindebücherei im Uhle-Hof empfiehlt in dieser Woche folgende neue Sachbilderbücher für Kinder ab 4 Jahren aus der Reihe "Wieso?Weshalb?Warum?" von Ravensburger:

mehr...
buchtipp-der-woche-2020-02-06Die Samtgemeindebücherei im Uhle-Hof empfiehlt in dieser Woche folgende neue tiptoi® - Bücher für Kinder:

mehr...
buchtipp-2019-08-22Die Samtgemeindebücherei im Uhle-Hof empfiehlt in dieser Woche folgende neue Bilderbücher für Kinder ab 4 Jahren:

mehr...
buchtipp-2019-01-31Die Samtgemeindebücherei im Uhle-Hof empfiehlt in dieser Woche folgende neue Bilderbücher für Kinder ab 4 Jahren:

mehr...
buchtipp-2018-12-13Die Samtgemeindebücherei im Uhle-Hof empfiehlt in dieser Woche folgende neue Weihnachtsbilderbücher für Kinder ab 4 Jahren:

mehr...
buchtipp-2018-11-29Die Samtgemeindebücherei im Uhle-Hof empfiehlt in dieser Woche folgende neue Weihnachtsbilderbücher für Kinder ab 4 Jahren:

mehr...
buchtipp-2018-07-19Die Samtgemeindebücherei im Uhle-Hof empfiehlt in dieser Woche folgende neue Bilderbücher für Kinder ab 4 Jahren:

mehr...
buchtipp-2018-03-08Die Samtgemeindebücherei im Uhle-Hof empfiehlt in dieser Woche folgende neue Tiptoi - Bücher vom Ravensburger Buchverlag für Kinder ab 4 Jahre:

mehr...
buchtipp-2017-12-07Die Samtgemeindebücherei im Uhle-Hof empfiehlt in dieser Woche folgende neue Weihnachtsbilderbücher für Kinder ab 4 Jahren:

mehr...
buchtipp-2017-11-23Die Samtgemeindebücherei im Uhle-Hof empfiehlt in dieser Woche folgende neue Bilderbücher für Kinder ab 4 Jahren:

mehr...
buchtipp-2017-08-17Die Samtgemeindebücherei im Uhle-Hof empfiehlt in dieser Woche folgende neue Bilderbücher für Kinder ab 4 Jahren:

mehr...
buchtipp-2017-02-09Die Samtgemeindebücherei im Uhle-Hof empfiehlt in dieser Woche folgende neue Bilderbücher für Kinder ab 4 Jahren:

mehr...
buchtipp-2017-01-12Die Samtgemeindebücherei im Uhle-Hof empfiehlt in dieser Woche folgende neue Tiptoi - Bücher für Kinder ab 4 Jahre:

mehr...
buchtipp-2016-12-15Die Samtgemeindebücherei im Uhle-Hof empfiehlt in dieser Woche folgende neue Weihnachtsbilderbücher für Kinder ab 3 Jahren:

mehr...
buchtipp-2016-11-24Die Samtgemeindebücherei im Uhle-Hof empfiehlt in dieser Woche folgende neue Weihnachtsbilderbücher für Kinder ab 3 Jahren:

mehr...
buchtipp-2016-06-02Die Samtgemeindebücherei im Uhle-Hof empfiehlt in dieser Woche folgende neue Bilderbücher für Kinder ab 4 Jahren:

mehr...
buchtipp-2016-03-24Die Samtgemeindebücherei im Uhle-Hof empfiehlt in dieser Woche folgende neue Bilderbücher für Kinder ab 4 Jahren:

mehr...
buchtipp-2016-02-04Die Samtgemeindebücherei im Uhle-Hof empfiehlt in dieser Woche folgende neue Bilderbücher für Kinder ab 4 Jahren:

mehr...
buchtipp-2015-12-10Die Samtgemeindebücherei im Uhle-Hof empfiehlt in dieser Woche folgende neue Weihnachtsbilderbücher für Kinder ab 4 Jahren:

mehr...
buchtipp-2015-10-01Die Samtgemeindebücherei im Uhle-Hof empfiehlt in dieser Woche folgende Bilderbücher für Kinder ab 4 Jahren:

mehr...
buchtipp-2015-06-25Die Samtgemeindebücherei im Uhle-Hof empfiehlt in dieser Woche folgende neue Bilderbücher für Kinder ab 4 Jahren:

mehr...
buchtipp-2015-05-28Die Samtgemeindebücherei im Uhle-Hof empfiehlt in dieser Woche folgende neue Bilderbücher für Kinder ab 4 Jahren:

mehr...
buchtipp-2015-04-30Die Samtgemeindebücherei im Uhle-Hof empfiehlt in dieser Woche folgende neue Bilderbücher für Kinder ab 4 Jahren:

mehr...
buchtipp-2015-02-226Die Samtgemeindebücherei im Uhle-Hof empfiehlt in dieser Woche folgende neue Bilderbücher für Kinder ab 4 Jahren:

mehr...
buchtipp-2014-12-18Die Samtgemeindebücherei im Uhle-Hof empfiehlt in dieser Woche folgende neue Weihnachtsbilderbücher für Kinder ab 4 Jahren:

mehr...
buchtipp-2014-10-23Die Samtgemeindebücherei im Uhle-Hof empfiehlt in dieser Woche folgende Bilderbücher für Kinder ab 4 Jahren:

mehr...
buchtipp-2014-08-14Die Samtgemeindebücherei im Uhle-Hof empfiehlt in dieser Woche folgende neue Bilderbücher für Kinder ab 4 Jahren:

mehr...
buchtipp-2014-07-17Die Samtgemeindebücherei im Uhle-Hof empfiehlt in dieser Woche folgende neue Bilderbücher für Kinder ab 4 Jahren:

mehr...
buchtipp-2014-06-19Die Samtgemeindebücherei im Uhle-Hof empfiehlt in dieser Woche folgende Bilderbücher für Kinder ab 4 Jahren:

mehr...
buchtipp-2014-05-22Die Samtgemeindebücherei im Uhle-Hof empfiehlt in dieser Woche folgende neue Bilderbücher für Kinder ab 4 Jahren:

mehr...
buchtipp-2014-04-03Die Samtgemeindebücherei im Uhle-Hof empfiehlt in dieser Woche folgende Bilderbücher für Kinder ab 4 Jahren:

mehr...
buchtipp-der-woche-2014-01-09Die Samtgemeindebücherei im Uhle-Hof empfiehlt in dieser Woche folgende neue Bilderbücher für Kinder ab 4 Jahren:

mehr...
buchtipp-der-woche-2013-12-12Die Samtgemeindebücherei im Uhle-Hof empfiehlt in dieser Woche folgende neue Weihnachtsbilderbücher für Kinder ab 4 Jahren:

mehr...
buchtipp-der-woche-2013-11-14Die Samtgemeindebücherei im Uhle-Hof empfiehlt in dieser Woche folgende neue Bilderbücher für Kinder ab 4 Jahren:

mehr...
buchtipp-der-woche-2013-10-02Die Samtgemeindebücherei im Uhle-Hof empfiehlt in dieser Woche folgende neue Bilderbücher für Kinder ab 4 Jahren:

mehr...
buchtipp-der-woche-2013-08-15Die Samtgemeindebücherei im Uhle-Hof empfiehlt in dieser Woche folgende neue Bilderbücher für Kinder ab 4 Jahren:

mehr...
buchtipp-der-woche-2013-06-13Die Samtgemeindebücherei im Uhle-Hof empfiehlt in dieser Woche folgende neue Bilderbücher für Kinder 4 Jahren:

mehr...
buchtipp-der-woche-2013-05-23Die Samtgemeindebücherei im Uhle-Hof empfiehlt in dieser Woche folgende neue Sachbücher für Kinder ab 5 Jahren:

mehr...
buchtipp-der-woche-2013-02-21Die Samtgemeindebücherei im Uhle-Hof empfiehlt in dieser Woche folgende neue Bilderbücher für Kinder ab 4 Jahren:

mehr...
buchtipp-der-woche-10-01-2013Die Samtgemeindebücherei im Uhle-Hof empfiehlt in dieser Woche folgende neue Bilderbücher für Kinder ab 4 Jahren:

mehr...
buchtipp-der-woche-2012-12-13Die Samtgemeindebücherei im Uhle-Hof empfiehlt in dieser Woche folgende neue Weihnachtsbilderbücher für Kinder ab 4 Jahren:

mehr...
buchtipp-der-woche-01-11-2012Die Samtgemeindebücherei im Uhle-Hof empfiehlt in dieser Woche folgende neue Bilderbücher für Kinder ab 4 Jahren:

mehr...
buchtipp-der-woche-090820122Die Samtgemeindebücherei im Uhle-Hof empfiehlt in dieser Woche folgende neue Bilderbücher für Kinder ab 4 Jahren: 

mehr...
buchtipp-der-woche-31052012Die Samtgemeindebücherei im Uhle-Hof empfiehlt in dieser Woche folgende neue Bilderbücher für Kinder ab 4 Jahren:  

mehr...
buchtipp-der-woche-03052012Die Samtgemeindebücherei im Uhle-Hof empfiehlt in dieser Woche folgende neue Bilderbücher für Kinder ab 4 Jahren:

mehr...
buchtipp-der-woche-29032012 Die Samtgemeindebücherei im Uhle-Hof empfiehlt in dieser Woche folgende neue Bilderbücher:

mehr...
   

Kontakt Rathaus  

Samtgemeinde Schwarmstedt
Am Markt 1
29690 Schwarmstedt

Tel. (05071) 809 - 0
Fax. (0511) 93 69 717 62
E-Mail: rathaus@schwarmstedt.de

thumbnail Feedback, Mängelmeldung
thumbnail Terminbuchung
   

Öffnungszeiten  

Öffnungszeiten Bücherei

Montag 15-18 Uhr
Dienstag 15-18 Uhr
Mittwoch geschlossen
Donnerstag 15-19 Uhr
Freitag 9-12 Uhr

Tel. (05071) 800-400

eMail: buecherei@schwarmstedt.de

   

Veranstaltungskalender  

   

Aktuelles  

17.04.2026
hallenbadschliessung-am-21-04-2026-ab-15-00-uhrAus personellen Gründen muss das Hallenbad am mehr...
14.04.2026
bekanntmachung-gilten-2026-04-ratDie nächste Sitzung des Rates der Gemeinde Gilten findet am 22.04.2026, um...mehr...
09.04.2026
bekanntmachung-buchholz-2026-04-ratDie nächste Sitzung des Rates der Gemeinde Buchholz (Aller), als...mehr...
02.04.2026
bekanntmachung-lindwedel-2026-04-rDie nächste Sitzung des Bau- und Wegeausschusses, als Wegebegehung, der...mehr...
31.03.2026
aktuelles-2026-04-minigolfAm Mittwoch, 01. April 2026 startet die Minigolfanlage in die neue...mehr...
30.03.2026
aktuelles-2026-04-sprechstunde-formularlo Die Formularlotsen sind im April 2026 mit persönlichen...mehr...
   
   

 

  Samtgemeinde Schwarmstedt

Postfach 1154
29684 Schwarmstedt

Hausanschrift:
Rathaus
Am Markt 1
29690 Schwarmstedt

Vorsprache nur nach Terminvereinbarung

Telefon (Zentrale): 05071/809-0
Telefon (Bürgerbüro): 05071/809-99
E-Mail: rathaus@schwarmstedt.de
Kontakt (Was erledige ich wo?)

Kontodaten der Samtgemeindekasse

Sprechzeiten Bürgerbüro
(Meldeamt, Ausweise/Pässe, Fundbüro, Kfz-Zulassung, Gewerbe/Gaststätten):
Montag, Mittwoch & Freitag 08:30 – 14:00 Uhr
Dienstag & Donnerstag 08:30 – 12:00 Uhr 
  13:00 – 18:30 Uhr


Sprechzeiten Sozialamt
(Bürgergeld, Sozialhilfe, Wohngeld, Asylbewerberleistungen, Unterbringung):
Montag – Freitag, 10:00 – 12:00 Uhr
Donnerstag 16:00 – 18:00 Uhr
   
allgemeine Sprechzeiten:
Montag – Freitag, 08:30 – 12:00 Uhr
Montag – Mittwoch, 13:00 – 15:00 Uhr
Donnerstag 14:00 – 18:00 Uhr
   
 
Impressum Datenschutz Barrierefreiheit Quellenangaben